Bendegúz lakópark

Nagykozár

DETAILS

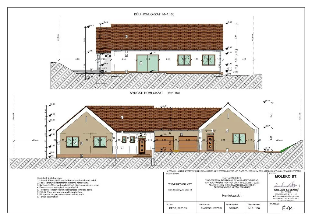
2025 márciusa óta dolgozunk Nagykozárban különleges családi házak megvalósításán, amelyek a tervezéstől a kivitelezés utolsó részletéig a magas minőséget és a gondos szakmai munkát képviselik. Ezek az otthonok nem egyedi megrendelésre készülnek – célunk, hogy leendő tulajdonosaik számára kész, azonnal beköltözhető, modern és időtálló élettereket hozzunk létre.

A tervezés során kiemelt figyelmet fordítunk a praktikus elrendezésre, a természetes fények maximális kihasználására, valamint a tágas, jól élhető terek kialakítására. A kivitelezés minden fázisában megbízható, prémium minőségű anyagokat alkalmazunk, és tapasztalt szakemberekkel dolgozunk együtt – a szerkezetépítéstől a belsőépítészeti megoldásokig.

Családi házaink megfelelnek a legkorszerűbb energetikai és technológiai elvárásoknak, így nemcsak esztétikusak, hanem energiahatékonyak és fenntarthatóak is. Olyan otthonokat alkotunk, amelyek kompromisszumok nélkül biztosítják a modern élet kényelmét.

A kivitelezés során különös hangsúlyt kapnak a részletek: a precíz munka, az egységes stílus és a harmonikus, meleg hangulat megteremtése. Minden házunk célja, hogy már első pillantásra magával ragadja leendő tulajdonosát.

Számunkra ezek a projektek többet jelentenek egyszerű építkezésnél: minden egyes ház egy megvalósult álomotthon. Ha Ön egy igényes, újszerű családi házat keres, amely azonnal költözhető, ezek az ingatlanok ideális választást kínálnak.

Nagykozári családi házak – álomotthon születik, 2025 márciusa óta épülő projekt

Project Details

Contractor:

Tűz-Partner kft.

Start Year:

2025.03

Category

Newly Built Family House

Project Name:

Nagykozár

Location:

Nagykozár

Aktuális állapot — 2026.04.30

REAL ESTATE PRICES

Phase City Expected handover Area (m²) Terrace (m²) parking space (m²) Garage (m²) Price (HUF) price per m² (HUF/m²)
1 Nagykozár 2026. Nyár 104 22+18 18 123 900 000 Ft 950 000 Ft/m²
1 Nagykozár 2026. Nyár 140 18 2pcs 34 158 500 000 Ft 950 000 Ft/m²
2 Nagykozár 2026. Nyár 92 15 18 105 900 000 Ft 950 000 Ft/m²
2 Nagykozár 2026. Nyár 92 15 18 105 900 000 Ft 950 000 Ft/m²
3 Nagykozár 2026. Nyár 97,5 15 18 109 900 000 Ft 950 000 Ft/m²
3 Nagykozár 2026. Nyár 97,5 15 18 109 900 000 Ft 950 000 Ft/m²

Construction Photos

See how the vision comes to life!

en_USEnglish